Consultar por futuro stock de oficina de 180 m2 en Barrio El Golf y oficina de 501 m2 en Nueva Las Condes
Arriendo de oficinas

Oficinas amobladas

Control de ingreso

Detectores de humo

Guardia de seguridad 24hrs
Plantas disponibles
Arrendada
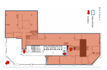
Piso 9
Superficie Disponible: 790 m²
Oficinas: UF 316 +IVA (UF 0,40 m2 neto x 790 m2)
Estacionamientos: UF 42 neto (UF 3,5 unidad neto x 12 estacionamientos)
Bodegas: UF 7,5 neto
TOTAL: UF 365,5 + IVA
EJEMPLO DE SUB DIVISIÓN 01

Piso 9
Superficie Disponible: 523 m²
Precio arriendo mensual: UF 0,40 m² + IVA
Estacionamientos y bodegas Disponibles
EJEMPLO DE SUB DIVISIÓN 02

Piso 9
Superficie Disponible: 267 m²
Precio arriendo mensual: UF 0,40 m² + IVA
Estacionamientos y bodegas Disponibles
Consultar por futuro stock de 180 m2 en WTC y 501 m2 en Nueva Las Condes
Galeria de imagenes
Av. Vitacura 2771, Las CondesCercano a Metro Tobalaba
















